Mimari uygulama projesinde kolon, kiriş, merdiven vb. yapı sistemlerini çizgi çizgi belirtmek için statik projeyi doğru okumak gerekir. Bunu en basit başlangıç okuma mantığı olarak, mimari bir kat plani çizimi insanin goz hizasindan kati keserek yukaridan asagiya bakmak kabul edersek Statik proje ise tam tersi yani kesilen kata yukaridan asagiya degilde asagidan yukariya bakmak oluyor.
Kısaca aklınızda kalması için proje okurken mimarlar yukarıdan aşağı bakarlar bu mimari proje okurken ki bakış açısıdır oysa biz inşaatçılar ise aşağıdan yukarı bakarız bu da statik proje okurken ki bakış açısıdır.
Betonarme yapılar için hazırlanan statik projelerde kolon aplikasyon planı, sürekli temel açılımları, kolon düşey açılımları, kiriş açılımları, katların kalıp ve donatı planları bulunur. Statik proje kesitleri ve bu kesitlerin donatılarını basit bir mantıkla üzerinde barındırır. Eğer yaptığınız projeden işçiler hiçbir şey anlamıyorsa siz bu projeyi yapamamışsınız demektir. Sizin yaptıklarınız değil, karşıdakinin anladıkları kadardır o proje.
Peki statik proje üzerinde yazan terimler ne anlama geliyor? Hemen bundan da bahsedelim. Bir örnek ile açıklayacak olursak, 6(Ø)16/200 için okunuşu şu şekildedir;
Donatı çapı: 16 mm, Donatı Adedi: 6, Donatı Aralığı ise: 200 mm (20 cm)
Genel Proje okuma
Yapı işlerinde çalışan demirci ustasının, betonarme ve mimari projeyi, kalıp ustasının betonarme projeyi, sıhhi tesisat ustasının tesisat projesini, elektrik ustasının elektrik projesini, kalfanın mimari, betonarme, elektrik ve tesisat projesinin tamamını okuyabilmesi, diğer ustalara anlatabilmesi gerekir. Kalıp ustası kalıp planından döşeme sistemini, döşeme kalınlığını ve kiriş ebatlarını öğrenmeden kalıp işine başlayamaz.
Yine aynı şekilde betonarme projeden donatı çap, adet ve uzunluklarını okuyamayan bir demircinin, demir işlerini yapması mümkün değildir. Bu nedenle proje okuma son derece önemlidir.
Mimari - betonarme proje - elektrik ve tesisat projelerinde ustaların bilmesi, okuması gereken konular, elemanlar, proje üzerinde anlatılacaktır.
1. Yapı genel bilgileri
İnşaat ruhsatı alınmış bir yapının, yapıya başlanmadan önce işveren - taşeron - kalfa ve demir ustasının yapılacak bina hakkında bilgiye sahip olması gerekir. Bu bilgiler tasdikli betonarme projesinin ön sayfasında ve pafta altlarında bulunmaktadır.
Bu bilgilerin öğrenilmesi, yapı için ekip hazırlanması, iş bölümü ve işveren ile yapının taahhüdünü üstlenenler için önemlidir. Proje sayfasında yazılmamış bilgiler kontrol mühendisinden öğrenilmelidir. Binanın projesine uygun yapılması için bu bilgiler doğrultusunda anlaşmalar yapılmalı, yapım esnasında proje dışı malzeme kullanılmamalı ve işçilik hataları olmamalıdır.
Unutmamamız gereken diğer bir konu ise her proje kendi içinde değerlendirilmelidir. Komşu binanın demir, beton malzeme cinsi ile işçilik kalitesi yapılacak bina için emsal teşkil etmemelidir. Bu nedenle yapı genel bilgileri yapıya başlanmadan incelenmelidir.
Proje üzerindeki yapı bilgileri
- İl — ilçe — mahalle — sokak — kapı no
bina (inşaat) yapılacak yeri, adres olarak tarif eder. - Pafta — ada — parsel
Tasdikli projedeki bu bilgiler, arsanın tapudaki kayıtlarını,
Diğer bir deyişle tapu dairesindeki paftalarda arsanın yerini belirleyen bilgilerdir. - Kat adedi
Kaç katlı bir yapı olduğunu (bodrum + zemin + normal kat) ifade eder. - Yapı sistemi
Yapılacak yapının taşıyıcı sisteminin malzeme türünü ifade eder (betonarme) (çelik) (prefabrik) v.s. - Beton cinsi
(bs20 — bs25 — bs30 ... V.s.) binada kullanılacak beton sınıfını (c20 — c25 — c30 ...v.s.) gösterir. - Demir cinsi
(ST I) düz demir, (STILI) nervürlü demir olduğunu gösterir. - Döşeme sistemi
Kalıp sisteminin nasıl olduğunun bilinmesini bilgilendirir. (plak - asmolen kirişsiz plak, vs) - Temel sistemi
Temel sistemi hakkında bilgi verir. (münferit - mütemadi - radye vs) - Kullanma amacı
Yapının ne amaçla inşa edileceği hakkında bilgi verir. (konut - iş yeri - mağaza vs)
2. Mimari proje
Kalfa ve ustalar inşaatın her aşamasında mimari projeye bakmak zorundalardır. Mimari ve betonarme proje devamlı birlikte olmak durumundadır. Hatasız bir imalat iki projenin birlikte bakılması gerekli ölçülerin alınması ile mümkündür. Bu nedenle ustaların mimari projeyi de çok iyi okumaları, hangi bilgilerin nereden alınacağını bilmeleri çok önemlidir.
3. Vaziyet planı ve numarataj krokisi
Vaziyet planından aşağıda belirtilen bilgiler alınır.
- Yapının arsa üzerindeki yerleşim konumu (kuzeye göre)
- Yapının kat adedi, kat isimleri (kesitten)
Ön bahçe, yan ve arka bahçe çekme mesafeleri,
- Komşu parselleri ve parsel numaraları
- Cadde, sokak isimleri
- Arsa ve bina kitlesinin yola göre kotları
- Arsa ve kitle ölçüleri
- Arsada birden fazla blok varsa (toplu konut) bunlar' blok isimleri ve birbirine olan mesafelerini gösterir.
- İl, ilçe, sokak ve kapı no (yapılacak yapının)
- Pafta, ada, parseli (yapılacak yapının)
Örnek olarak verilen vazıyet planını inceleyecek olursak:
- Kesitten inşaatı yapılacak binanın; bodrum, zemin, ı. Kat, 2. Kat olmak üzere toplam 4 katlı olduğu görülmektedir.
- Arsanın ön ve arka cephe uzunlukları 1180 (1180 cm) dir.
- Arsanın sol ve sağ derinlik ölçüsü 1820 (1820 cm)
- Arsanın 9750 sokakta, 8 nolu parsel olduğu, 7 ve 9 nolu parseller ile komşu olduğu görülür.
- ± 000 binanın inşasında kot alınacak yerı, -2.00 ise (200cm) arka bahçenin yola göre 2.0 m aşağıda olduğunu gösterir.
Numarataj krokisi: yapı katlarının bağımsız bölüm isimleri, kat no'ları ile sokak ve kapı numaralarını gösterir. Projelerde vazıyet planı ile numarataj krokisi bir arada bulunduğu için tapu kayıt bilgilerini ayni paftada görmek mümkündür.
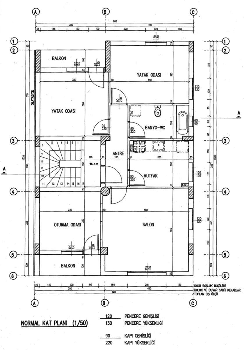
4. Kat planları (mimari)
Yapım sırasında kat planlarına çok sık bakılır. İmalata yön veren birçok bilgi alınır.
- Pencere genişlik ve yükseklikleri
- Kapı genişlik ve yükseklikleri
- İç ve dış ölçüler
- Mahal isimleri, taban kaplama cinsleri (seramik, parke, vs..) -kotlar (katın veya bir bölümünün kotları)
- Merdivenin basamak genişliği, uzunluğu, rıht yüksekliği ve merdiven çıkış yönü.
- Duvar kalınlıkları
- Bina bitişik taraflarının dilatasyon ölçüsü.
- Bacalar ışıklıklar ve ölçüleri
- Tretuvar üst kotuna göre katların taban kotları -bodrum veya zemin katta rampa var ise uzunluğu ve eğimi
- Çatı planında su toplama yerleri, çatı şekli, eğimi, bacalar ve çatı çıkış boşluklarını görmek mümkündür.
- Mimari proje de tüm kat planlarına (bodrum, zemin, batar, normal kat, asansör dairesi vs...) Özellikle duvar örme, ve kapı Pencere imalatı öncesi bakılması gerekir.
Sonuç olarak her imalat safhasın da mimari projeye bakılır.
5. Mimari kesit
Mimari projede kesitler kat planları gibi birçok bilgi verir. Kalfa, kalıp ustası ve demirci için kesitler önemlidir. Bir projede en az 2 kesit bulunur . Bu kesitlerden bir tanesi merdivenden geçer. Kesitin geçtiği yerde döşeme şekli, mahal isimleri ile birçok bilgiler alınır.
- Her katın brüt, net kat yükseklikleri,
- Kapı, pencere yükseklik ve kotları,
- Her katın döşeme sistemi (plak, asmolen, vs...),
- Düşük döşeme var ise ölçü ve kotları,
- Merdiven kesiti (merdiven plak sistemi ),
- Döşeme, pencere denizlik vs.. Kotlar,-yol ve tretuvar kotu,
- Çatı var ise , elemanlarının şekli , ebatları, eğimi, ve kaplama cinsi, baca kotları,
- Çatı teras ise su ve ısı izolasyonu için malzeme isimleri ile kalınlıkları,
- Asansör dairesi var ise motor taban kesiti ve kotları,
6. Görünüşler
Binanın projesinde bütün görünüşleri görmek mümkündür.
Yapının ince işleri ile ilgili bilgiler alınır.
- Yol üstündeki katların tüm görünüşleri, kat kotları
- Yol altında kat varsa, kesit çizgi ile kotları
- Cephede kullanılacak malzeme ve renkleri, balkon korkuluklarının görünüşü
- Yağmur olukları
- Cephe kapı pencere görünüşleri,
- Çatı ve baca görünüş ve kotları,
- Balkon, saçaklarının görünüş ve kotları,
- Yol ve tretuvar kotları,
- Yapı bahçeli nizam ise, bahçe kotları,
- Su basman kotu,
- Yapının cinsi ve özelliğine göre birçok detayların cephe görünüşleri,

Meslekteki yeni arkadaşlara faydalı olması temennisi ile..





Toplam 26 Yorum
Hikmet Yilmaz
01.02.2016 13:03:21
Peki fi 20/15 30 ne demektir. Yardimci olurmusunuz.
Hafzullah Yıldırım
18.03.2016 10:29:13
20 mm çapında 15 cm aralıklarla 30 cm uzunluğunda demek ama yazılışı şu şekilde olması lazımdı Ø20/15 L=30 gibi..
fulya emre
25.03.2016 12:42:45
Mrb okumaya çalıştığım projede kolonun yanında daire içine alınmış sayılar var onların ne olduğunu söyleyebilirminiz
Hafzullah Yıldırım
26.03.2016 11:40:59
Kolon poz numaralarıdır onlar.
volkan hoskal
28.03.2016 17:47:38
Rica etsem projeden kesit almayı gösterebilir misiniz AA KESİTİ BB kesiti videolu anlatım olarak çok sıkıntı yaşıyoruz kesit çıkarmada
Hafzullah Yıldırım
27.04.2016 09:46:31
En kısa zamanda kesit çıkarma adı altında yeni bir makale olarak yayınlayacağım. Teşekkürler.
berat
06.05.2016 20:23:57
Abi radye temel de statik projesinde demir donatısı nerede yaziyo yada açılımları nerededir bi bilgi lutfen
Ali kuş kaya
26.04.2016 18:36:55
20mi demir kalınlığı 15ara ölçüsü 30 adet
Hafzullah Yıldırım
27.04.2016 09:49:51
30(Ø)20/150 sizin okuduğunuz cümlenin yazılışı.
Yıldırım çelik
22.05.2016 21:23:31
12@16 L270 ne demektir. Vs
Hafzullah Yıldırım
23.05.2016 09:40:49
12 tane Ø16 (16 mm çapında), ve L (lenght=uzunluk) 270 cm uzunluğunda demir demektir.
Kemal önarslan
20.06.2016 12:15:01
Hafzullah bey merhaba... Şantiyelerde demir montajı poz numarası sırasıyla mı yapılıyor? Yani ilk olarak 01 poz numaralı demiri koyup daha sonra 02 03 04 diye devam edilerek mi montaj yapılıyor?
Hafzullah Yıldırım
27.06.2016 00:21:28
Proje geneli veya kısmi üretime göre poz numarasının imalat numarası ile bir bağlantısı yoktur.
Erdal gayirnal
26.06.2016 20:55:46
Projelere merakliyim
Hafzullah Yıldırım
27.06.2016 00:19:41
Allah artırsın :)
kemal
23.07.2016 15:08:53
kolon etre detayinda yazan pi10/15/10/10 ne demek ? Detaylı cevaplar sanırım sevinirim
Hafzullah Yıldırım
31.07.2016 18:08:14
Bahsettiğiniz 10 mm çapında demirin açıklıklarda 15 cm, sıklaştırma bölgelerinde ise 10 cm ara ile uygulanacağı anlamına geliyor.
Süphan
31.07.2016 12:15:10
Ø10/12/8 ne demek
Hafzullah Yıldırım
31.07.2016 18:09:36
Bahsettiğiniz muhtemelen kolon veya kiriş etriyeleri; 10 mm çapındaki demirin açıklıklarda 12 cm, sıklaştırma bölgelerinde ise 8 cm aralık ile yerleştirileceği anlamına geliyor.
OKAN BULUT
08.12.2016 09:50:05
2*1 fi 16 L=1160 2 çarpı 1 ne demek? bu bir kiriş gövde donatısı şimdiden teşekkürler.
Hafzullah Yıldırım
08.12.2016 10:17:58
Böyle yazmasının birçok sebebi olabilir, proje bakmadan yorum yapmak zor. Projeyi iletirseniz yardımcı olurum.
Veli Yıldız
27.01.2017 01:21:23
1 sıra gövde donatısı olduğunu göstermektedir. Mesela 2*2 olsaydı 2 sıra gövde donatısı olacaktı.
Yucel cam
19.07.2019 02:39:10
Yani gövde iki darafta da var etrenin 2 bitarafta 2 bitarfta
selen öztürk
09.12.2016 08:44:20
bir merdivenin statik projesinde cfz01, cfz02 fln yazıyo cfz ne demek?
Hafzullah Yıldırım
09.12.2016 10:21:58
Bakmak lazım arkadaşlar. Her projede projeyi çizen kişi poz numarasını kafasına göre verebilir. O yüzden incelemeden yorum yapamıyorum.
hayati göçer
01.01.2017 17:22:38
İyi günler ben statik proje ve mimari proje hakkında soru soracaktım sınav sorumuz bu bizim. Statik ve mimari proje icinde ne var?
Hafzullah Yıldırım
04.01.2017 09:17:43
Bu soruyu cevaplamak, mühendisliği baştan okumak gibi bir şey. Ne demek ne var?
Bahattin değirmenci
14.01.2017 20:19:13
Projede neresinde katın yüksekliği yazıyor
Hafzullah Yıldırım
27.01.2017 07:55:56
Birçok yerde yazar kat yüksekliği. Kot farklarından da bulabilirsiniz.
Mehmet Demirhan
28.02.2017 16:16:53
Merhaba, mütemadi temel olarak bir projenin üstünde MT 80/60/80 gibi bi değer yaziyor. Buradaki sayılar neyi ifade eder?
Hafzullah Yıldırım
28.02.2017 21:30:18
80/60/80 boyutları anlatır, x,y,z dir.
Muhammed Eroğlu
02.03.2017 14:02:14
merhaba, radye temelde Q14/10 ara çok mu sık, bu mümkün müdür?bir iki projede gördümde.
Hafzullah Yıldırım
09.03.2017 09:18:08
Hayır çokta sık değildir, proje bazlı olabilir. Yani zemin mukavemet dağılımı çok dengesiz ise veya yapı önem derecesi çok yüksek ise neden olmasın? 2007 Deprem Şartnamesinde problem olmayacak şekildeki sıklıklarda neden problem olsun ki.
Bilim
13.03.2017 19:54:11
Sürekli temel kirişinden kolon çıkan yerde fi10/15/10/10 neyi ifade eder?
Hafzullah Yıldırım
16.03.2017 09:08:28
Bahsettiğiniz 10 mm çapında demirin açıklıklarda 15 cm, sıklaştırma bölgelerinde ise 10 cm ara ile uygulanacağı anlamına geliyor.
mehmet aymaz
01.04.2017 19:52:40
10fi20L=590cm..okunuşu nedir
Hafzullah Yıldırım
05.04.2017 03:00:02
Yukarıdaki yazıyı okursanız soruyu kendiniz cevaplayabilirsiniz.
HİLMİ
07.06.2017 15:48:21
Q8/14/7/8 bu ne demek arkadaşlar yani şöylemi ; etriye çapı 8mm , ara bölgede 14 cm arayla , alt sıklaştırmada 7 cm , üst sıklaştırma bölgesinde 8 cm mii ?
SULTAN
08.06.2017 00:26:20
Evet aynen öyle demek
İsa
03.07.2017 18:44:17
Merhabalar asmolen döşeme de proje 20@8/20 cm ara ile ama ustalar toplamda 30 tane demir atmış acaba iki asmolen arası atılan demirler buna dahil mi yoksa bu demirler etriye leri bağlamak için mi atılmış. Bu döşeme üzerinde yazılan demir sayısı sadece asmolen üzerine atılan demirler mi şimdiden teşekkür ederim
Hafzullah Yıldırım
04.07.2017 12:13:21
O asmolende eğer 20 cm aralıklarla 8 mm lik 20 adet demir atılması yazıyorsa projede, gerçekten atılan demirin asmolendeki özellikleri karşılıyor olup olmadığına bakılır. Yani amaç önemli değildir, etriye bağlar, takviye yapar, destek yapar vb. Ama o uzunlukta, o konumda, o sayıda ve o özellikte demir var mı? Varsa problem yok.
Yilmaz
02.12.2017 13:38:07
Hocam asansör boşluğunda kapı var ama ölçü olarak bilmiyorum diğer katlarda normal bu sadece bodrum kat için dört köşe perde diğer katlarda duvar orulecek iki taraflı perde yani
Hafzullah Yıldırım
07.12.2017 00:19:55
O zaman bize Kolay gelsin demek düşer Yılmaz bey.
Ali Ak
06.02.2018 15:56:57
Hafzullah bey merhaba 2 10 Q 12/20 demir projesi nasıl okunur
İbrahim
07.02.2018 08:47:25
Hafzullah bey merhaba 1 18@12/20 alt/üst ne demektir. Kolay gelsin.
Murat
07.02.2018 08:54:14
Merhabalar 5 @10/4 adet/m2 anlamı nedir İyi çalışmalar
iremm
11.11.2018 23:19:50
yarın sınavım var ve autoCAT'te topal pencere nasıl olur bilmiyorum hoca bir kesit verir oradaki topal pencere kısmını nasıl anlarım ?
Dilara şen
15.05.2020 04:50:37
Hocam çatı planını da görmek isterdik bu projenin oluşturmaya çalıştık görünüş ve kesitten yararlanarak ama onlarıda paylaşmanızı isterdim doğrusu saygılar
Osman
27.03.2021 00:16:09
Selamun aleyküm kardeşim öncelikle çok faydalı. Bir iş yapıyorsun allah razı olsıun benimde bir sorumm olacak sıfırda kurulan bir binada merdivenin başlangıç nıktası senin sitendeki proje örneğinde görünüyor bunu birçok projede göremiyoruz sebebi sence ne olabilir yada doğru sayfaya bakmıyormuyuz